滑动了解更多 
材质:PPR、FRPP、PP、PPH、UPVC、CPVC、PVDF

产品概述:
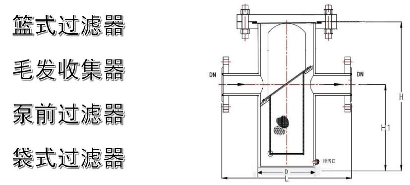
篮式过滤器是用于液体管道上,过滤管道内部杂物,过滤孔面积比通径管面积大,它是由进出口的接管和法兰,简体,滤篮,简体法兰,法兰盖及紧固件等组成,它安装在管路上能有效地过滤管路中的杂质颗粒,保障泵,压缩机,仪表等机器设备能正常运转,达到稳定生产工艺流程,起到安全生产的重要作用。
工作原理:
当液体通过进口进入筒体流经过滤器滤篮后,固体杂质颗粒会被阻挡在滤篮内,而洁净的液体通过滤篮,由过滤器出口流出。当杂质颗粒沉积较多时,就需要清洗,可打开过滤器提出滤篮进行清洗,维护保养较为方便。
适用范围:
我公司生产的篮式过滤器,设计合理,结构新颖,过滤能力大,压损小,防腐蚀,重量轻,安装方便。还可以根据客户的实际使用要求进行设计,可定制生产。该产品现广泛应用于:化工、制药、冶炼、污水处理。海水养殖食品,海滨浴场,温泉桑拿,环保工程等行业。

尺寸表:
| DN | 25 | 32 | 40 | 50 | 65 | 80 | 100 | 125 | 150 | 200 | 250 | 300 |
| D | 90 | 110 | 110 | 140 | 140 | 160 | 225 | 280 | 315 | 315/355 | 400 | 450 |
| L | 180 | 200 | 260 | 260 | 330 | 340 | 400 | 480 | 520 | 600 | 660 | 750 |
| H1 | 160 | 160 | 170 | 170 | 240 | 250 | 300 | 360 | 420 | 530 | 640 | 840 |
| H | 260 | 270 | 300 | 300 | 360 | 400 | 470 | 550 | 630 | 780 | 930 | 1200 |